102 Wynnum Road
A LIMITED TIME OPPORTUNITY in Wynnum Exclusives, QLD!
Hudson Homes is excited to present this fantastic opportunity to secure this single storey home in Wynnum, QLD!
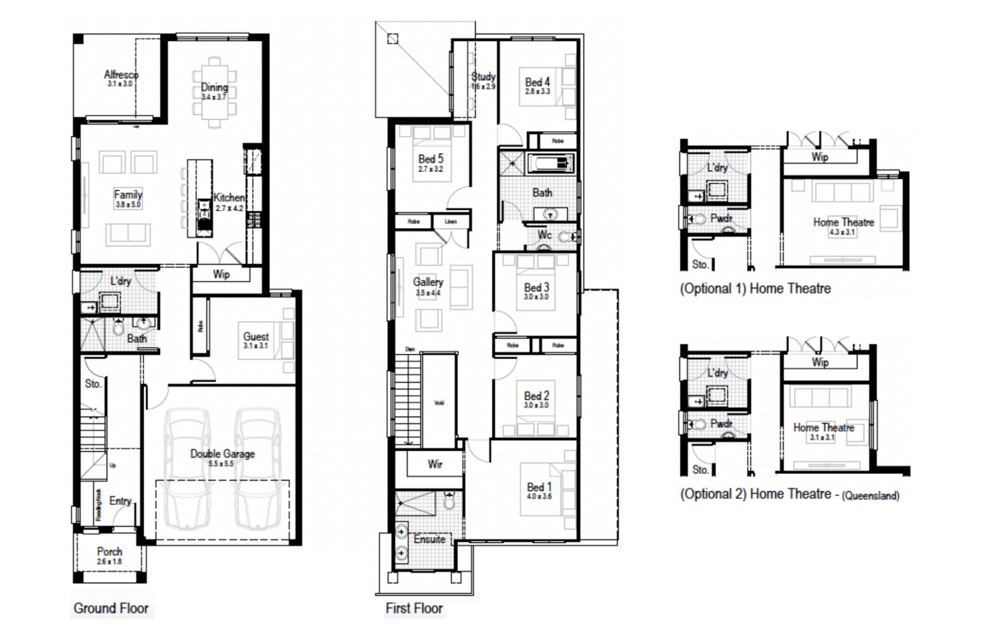
The Carolina is a success story in peaceful, generational living. With flexible options for up to six bedrooms and a dedicated theatre, it offers large families seeking a vast, “never-wantingmore” floorplan that guarantees everyone has their own space.
This home comes packaged with:
H3: Luxury Inclusions Package
- Hudson Homes Fixed Price Guarantee
- Hudson Homes Time Frame Guarantee
- Front facade as indicated
- Automatic Colorbond ® sectional garage door with two remotes
- Gourmet/Chef style kitchen design with fully lined cabinets finished with square edge laminated door fronts
- Overhead cabinets with bulkhead feature (with seamless cabinets to Gourmet style kitchen design)
- 40mm stone benchtops
- 900mm electric oven and 900mm gas or electric cooktop OR 900mm dual fuel freestanding cooker
- Integrated rangehood OR 900mm stainless steel canopy rangehood
- Stainless steel dishwasher
- Stainless steel microwave oven with trim kit
- Contemporary floating style vanity design with fully lined cabinets and laminted panels
- Frameless shower screens, chrome trim and clear glass
- LED downlights to entry, hallway, family, kitchen and meal areas
- Day/Night ducted air conditioning system (suitable to the size of the home)
Plus much more! Speak to a Hudson Homes New Home Consultant who is able to specifically outline the fixtures, fittings and finishes you will receive.
With Hudson Homes you will also be provided professional consultations to help you select the colours and design features inside and outside your home. This will ensure that you have the perfect home designed to your own taste and personality. For further information please contact Morgan Hales at Hudson Homes on 0417 571 864.
OUR GUARANTEES TO YOU
At Hudson Homes, we understand the importance of time and money. And since delivering upon our promises to you is at the heart of everything we do, every customer is offered peace-of-mind and security with our fixed price guarantee and our time frame guarantee.
Building a home shouldn’t be a roller coaster ride of surprises and unexpected costs. From the moment you sign your HIA Building Agreement and your home as been approved for construction, your price will be absolute and final. No excuses. No hidden extras. No surprises. Just one fixed price. Guaranteed.
Since we value your time, our Time Frame Guarantee means that we will complete your new home on time or we will pay YOU for every day it runs over. We are respectful of the fact that you need to make arrangements while your new home is being built and we know how excited you and your family are to move into your new home. So from site commencement, right through to practical completion, we will take responsibility for ensuring that the construction of your new home is given the priority it deserves, and we are committed to delivering your new home to you when we say we will. Quality homes backed by a solid commitment to deliver on time – that’s the Hudson Homes difference.
Disclaimer: Terms and conditions apply. Hudson Homes Pty Ltd reserves the right to alter any advertised price without notice. Home and Land packages are subject to developer design and statuary authorities approval. Photographs and other images are for illustrative purposes only and may show fixtures, fittings or finishes which are not supplied by Hudson Homes Pty Ltd, or which are only available in some designs or when selected as additional inclusions or upgrades above the standard specification. This may include landscaping, floor coverings, furniture, kitchen and bathroom accessories, light fittings, and other decorative items. Package pricing does not include stamp duty, legal fees or other costs incurred with the purchase of land. Please speak to a Hudson Homes New Home Consultant who is able to provide a fixed-price building contract that specifically outlines the fixtures, finishes, and features that you will receive. All plans and images are subject to copyright of Hudson Homes Pty Ltd ABN 92 623 431 685, Builders Lic: 15078318.






