5003 Proposed Road
A LIMITED TIME OPPORTUNITY in Birling Estate, Bringelly!
Hudson Homes is excited to present this fantastic opportunity to secure this single storey home in Bringelly, NSW!
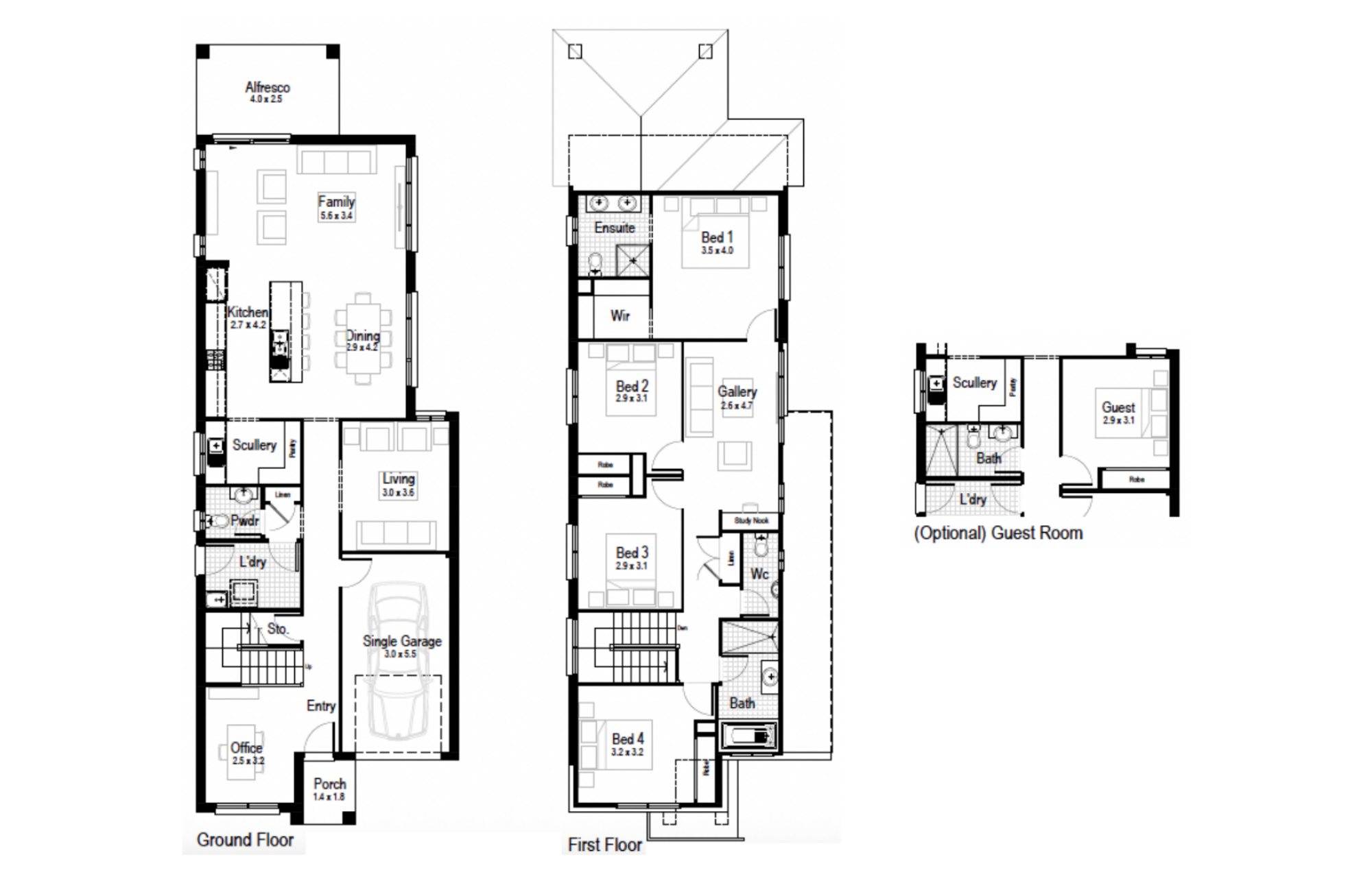
The Lime provides a compact snapshot of smart double-storey living for narrow blocks with multi-zone living and a personal upstairs retreat. Along with an open living space, this can ensure enough room for a busy, growing family.
This home comes packaged with:
H1: Smart Inclusions Package
- House facade as nominated
- Split System A/C Site costs and BASIX requirements
- Full lined kitchen cabinetry with overhead cupboards and bulkhead
- Laminate bench tops with rolled edge finish
- QUALITY appliances – stainless steel oven and cooktop, recirculating slide-out rangehood & dishwasher
- Contemporary floating style bathroom vanity and mirror, tiled splashback & 1675mm acrylic bathtub
- Sliding doors to built-in wardrobes
- Ceramic tiles to bathrooms, laundry, entry, family, kitchen and meal areas and carpet to all other internal areas
- 2440mm ceiling heights for single storey
- 2590mm ceiling heights for double storey (Ground floor only)
- Paint system to ceilings and walls
- Automatic garage door with 2 remotes
- Oyster style light fittings throughout
- Fully finished tiled outdoor alfresco
- Slimline water tank
Plus much more! Speak to a Hudson Homes New Home Consultant who is able to specifically outline the fixtures, fittings and finishes you will receive.
With Hudson Homes you will also be provided professional consultations to help you select the colours and design features inside and outside your home. This will ensure that you have the perfect home designed to your own taste and personality. For further information please contact Brian Zhou at Hudson Homes on 0483 989 961.
OUR GUARANTEES TO YOU
At Hudson Homes, we understand the importance of time and money. And since delivering upon our promises to you is at the heart of everything we do, every customer is offered peace-of-mind and security with our fixed price guarantee and our time frame guarantee.
Building a home shouldn’t be a roller coaster ride of surprises and unexpected costs. From the moment you sign your HIA Building Agreement and your home as been approved for construction, your price will be absolute and final. No excuses. No hidden extras. No surprises. Just one fixed price. Guaranteed.
Since we value your time, our Time Frame Guarantee means that we will complete your new home on time or we will pay YOU for every day it runs over. We are respectful of the fact that you need to make arrangements while your new home is being built and we know how excited you and your family are to move into your new home. So from site commencement, right through to practical completion, we will take responsibility for ensuring that the construction of your new home is given the priority it deserves, and we are committed to delivering your new home to you when we say we will. Quality homes backed by a solid commitment to deliver on time – that’s the Hudson Homes difference.
Disclaimer: Terms and conditions apply. Hudson Homes Pty Ltd reserves the right to alter any advertised price without notice. Home and Land packages are subject to developer design and statuary authorities approval. Photographs and other images are for illustrative purposes only and may show fixtures, fittings or finishes which are not supplied by Hudson Homes Pty Ltd, or which are only available in some designs or when selected as additional inclusions or upgrades above the standard specification. This may include landscaping, floor coverings, furniture, kitchen and bathroom accessories, light fittings, and other decorative items. Package pricing does not include stamp duty, legal fees or other costs incurred with the purchase of land. Please speak to a Hudson Homes New Home Consultant who is able to provide a fixed-price building contract that specifically outlines the fixtures, finishes, and features that you will receive. All plans and images are subject to copyright of Hudson Homes Pty Ltd ABN 92 623 431 685, Builders Lic: 15078318.






