New Split Level Designs
Do you have a sloping block?
We have created a new range of split level designs that are uniquely for blocks just like yours.
A lot of people buy (or own) sloping blocks but find it difficult to get a builder who can take on their job, which is why we created these 3 designs. This new range can cater for steep blocks with up to 3m fall across the building platform.
Sloping blocks offer some exclusive benefits such as:
- Enhanced home energy efficiency performance, control and comfort
- Allows for natural light and airflow
- Natural ventilation and
- Preservation of natural drainage
It's time to fall in love with your sloping block... could one of these designs be your dream home?
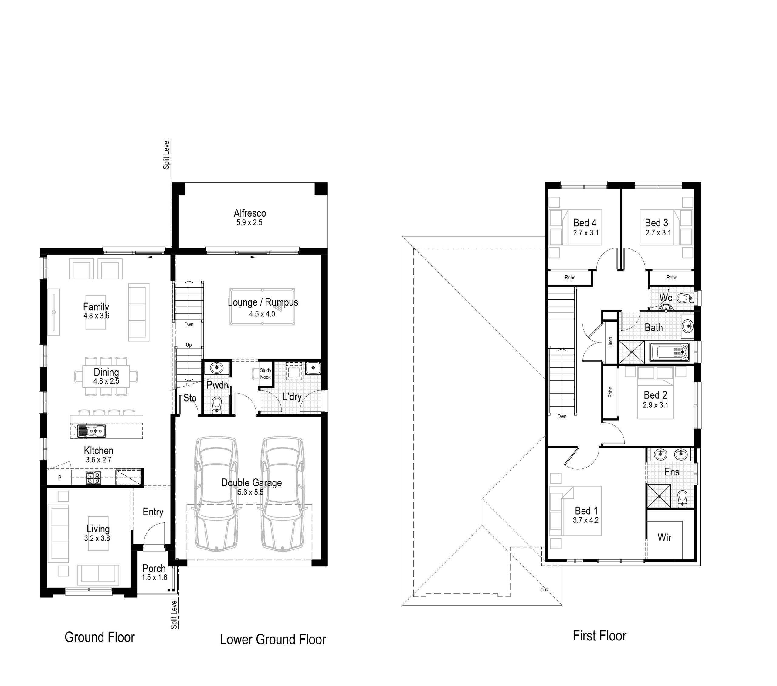
Cinnamon 
The Cinnamon is a practical home for all families. It is uniquely designed for a downward sloping block, has a wide entry, multiple living areas, a large kitchen & plenty of storage!
Cobalt 
Perfect for those that love to entertain, the Cobalt design boasts clean lines and an easy flow throughout the house. This home is designed for side-sloping blocks. To maximise privacy and encourage spending time together the bedrooms have been separated from the living rooms.
Mauve 
A double storey home with everything a family could need. This design is catered for blocks with an upward slope. It features an open-plan dining/living room, a dedicated study, guest bedroom, and an outdoor alfresco! It's perfect for families.
Could one of these be the home for you? Click here for a personalised quote or contact us to speak to a representative.















